Description
This section is prepared for technicians who have attained a high level of skill and experience in repairing collision- damaged vehicles and also use modern service tools and equipment. Persons unfamiliar with body repair techniques should not attempt to repair collision-damaged vehicles by using this section.
Technicians are also encouraged to read Body Repair Manual (Fundamentals) in order to ensure that the original functions and quality of the vehicle can be maintained. The Body Repair Manual (Fundamentals) contains additional information, including cautions and warning, that are not including in this manual. Technicians should refer to both manuals to ensure proper repairs.
Please note that these information are prepared for worldwide usage, and as such, certain procedures might not apply in some regions or countries.
The symbols used in this section for cutting and welding / brazing operations are shown below.




1. Mark cutting lines.
A: Cut position of outer pillar
B: Cut position of inner pillar
2. Align cutting line with notch on jig. Clamp jig to pillar.
3. Cut outer pillar along groove of jig. (At position A)
4. Remove jig and cut remaining portions.
5. Cut inner pillar at position B in same manner.

Hoodledge

Change parts
A. Front strut housing (LH) B. Upper front hoodledge C. Hoodledge reinforcement D. Hoodledge connector E. Radiator core support upper F. Hoodledge reinforcement rear G. Dash side extension

Front
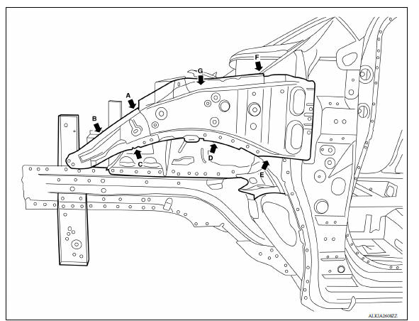
Front Side Member


Change parts
Front side member front
assembly
Front Pillar
OUTER
- Work after hoodledge and hoodledge reinforcement rear has been removed.

Change parts
Front pillar section of body
side outer A. Recommended sectioning location
REINFORCEMENT
- Work after front pillar outer has been removed.

Change parts
Front pillar reinforcement
INNER
- Work after front pillar reinforcement has been removed.

Change parts
Front pillar inner reinforcement
A. Mig welds
Front
Dash Side
Work with front pillar reinforcement removed.

Change parts
Dash side A. Mig welds
Center Pillar
OUTER

Change parts
A. Center pillar portion of body side outer recommended sectioning area.
Installation
Match welds locations from removed part onto new panel and weld into place.
REINFORCEMENT
Work after center pillar outer has been removed.

Change parts
Center pillar reinforcement
Roof

Replacement parts
Roof panel
Outer Sill
Work after the front pillar reinforcement, center pillar reinforcement and rear fender have been removed.

Change parts
Outer sill reinforcement A. Mig
stitch weld
Front
Rear Fender

Change parts
A. Recommended cut zone
Rear Panel

Change parts
Rear panel assembly
Front
Rear Floor Rear
- Work after rear panel assembly has been removed.

Change parts
Rear floor rear
Front
Rear Side Member Extension
- Work after rear panel assembly and rear floor rear have been removed.

Change parts
Rear side member extension
Front
SERVICE DATA AND SPECIFICATIONS (SDS)
Bluetooth Hands-Free Phone System without Navigation System (Type B) (if so
equipped)
WARNING
Use a phone after stopping your vehicle
in a safe location. If you have to use a
phone while driving, exercise extreme
caution at all times so full attention may
be given to vehicle operation.
If you are unable to devote full attention
to vehicle operation while talking on
...
Automatic speed control device (ASCD)
Automatic speed control device (ascd)
: switch name and function
SWITCHES AND INDICATORS
1. CRUISE indicator 2. CANCEL switch 3. ACCEL/RES switch
4. COAST/SET switch 5. ASCD MAIN switch
A. On the combination meter B. On the steering wheel
SET SPEED RANGE
ASCD system can be set the follow ...